Are you struggling to arrange your living room furniture in a way that feels both comfortable and stylish? Finding the right plan with clear dimensions can make all the difference.
Imagine walking into your living room and instantly feeling that everything fits perfectly—no cramped corners, no awkward gaps. In this post, you’ll discover practical furniture living room plans with exact measurements to help you design a space that works for you.
Keep reading, and you’ll learn how to create a balanced, inviting room that matches your lifestyle and taste.
Measuring Your Living Room
Measuring your living room accurately is the foundation of a successful furniture layout. Without precise measurements, you risk buying pieces that don’t fit or arranging them in a way that disrupts the room’s flow. Taking the time to measure every important detail helps you visualize the space better and make confident design choices.
Key Dimensions To Note
Start by measuring the length and width of the entire living room. Use a tape measure and jot down the exact numbers in feet or meters, depending on your preference. Don’t forget to measure the ceiling height too—this affects the scale of tall furniture and lighting options.
Note any alcoves, recesses, or irregular shapes in the room. These can become unique spots for seating or storage, but only if you know their dimensions well. Having these details on paper makes it easier to plan around them.
Recording Door And Window Placements
Doors and windows impact where you can place furniture. Measure their width, height, and distance from the floor to understand how much wall space they occupy. Also, note how far they are from corners or other structural elements.
Track the direction doors open and whether windows have sills or radiators below them. These details prevent you from blocking access or natural light with bulky furniture. Imagine placing a tall bookshelf where a window opens—that would be inconvenient.
Considering Traffic Flow
Think about how people move through your living room daily. Identify the main walkways and measure their width, ensuring there’s enough space for comfortable passage. Ideally, pathways should be at least 30 inches wide.
Try walking through your room with imaginary furniture in place. Does the flow feel natural, or do you bump into things? Planning your layout around smooth traffic flow helps avoid cramped and awkward spaces.
Choosing The Right Furniture
Choosing the right furniture for your living room shapes the entire space. It affects comfort, style, and how well the room functions. Careful selection ensures your living area feels balanced and inviting. Consider size, style, and material to match your needs and taste.
Selecting Size-appropriate Pieces
Size matters a lot in a living room. Large furniture can overcrowd a small space and make it hard to move around. Small pieces may look lost in a big room. Measure your room before buying. Leave enough space for walking paths and other activities.
- Measure the room’s length and width accurately
- Choose sofas and chairs that fit the available space
- Allow at least 18 inches between furniture for comfort
- Consider the height of furniture for visual balance
Multi-functional Furniture Options
Furniture that serves more than one purpose saves space. It keeps the room tidy and practical. Look for sofas with storage or ottomans that open. Folding tables or wall-mounted shelves add flexibility. These pieces are perfect for smaller living rooms.
- Storage sofas and sectionals
- Convertible coffee tables
- Fold-out guest beds
- Stackable or nesting chairs
Material And Style Considerations
The material of furniture affects durability and comfort. Choose fabrics easy to clean if you have kids or pets. Leather offers a classic look and lasts long. Wood adds warmth and can match many styles.
Style sets the room’s mood. Match furniture style with your home’s theme. Modern, traditional, or rustic pieces each create a distinct feel. Consistency makes the room look well planned.
Layout Ideas For Small Spaces
Designing a living room in a small space can feel like solving a puzzle. Every inch matters, and the right layout can make your room look larger and feel more comfortable. Let’s look at some practical ideas that help you use your space wisely without sacrificing style or comfort.
Maximizing Corners
Corners often get overlooked, but they can be your best friends in a small living room. Instead of leaving them empty, place a cozy armchair or a small bookshelf there. This not only fills dead space but also creates a nook for reading or relaxing.
Try a corner sectional sofa if your space allows. It hugs the walls and opens up the center of the room, making it feel less crowded. Adding a corner floor lamp can brighten the area and make it inviting.
Using Vertical Space
When floor space is tight, look up. Vertical storage like tall shelves or wall-mounted cabinets frees up the ground area and keeps your room tidy. Use hooks or hanging planters to add personality without clutter.
Floating shelves are great for displaying books, photos, or small plants. They draw the eye upward, creating the illusion of higher ceilings. Could your walls handle a gallery or a vertical storage unit to clear up floor space?
Open Vs. Defined Zones
Deciding whether to keep your living room open or divided into zones depends on your lifestyle. An open layout makes a small space feel airy and connected, especially if you entertain often. But if you need separate areas for work, play, or relaxation, defining zones is key.
Use rugs or different lighting to mark boundaries without building walls. A slim console table behind a sofa can act as a subtle divider. What functions do you need your living room to serve, and how can you arrange furniture to support them?
Arranging Seating And Tables
Arranging seating and tables in a living room requires careful thought. The goal is to create a comfortable space that flows well and feels inviting. Proper placement improves both function and style. Each piece should have a purpose and fit the room’s size and shape.
Optimal Sofa Placement
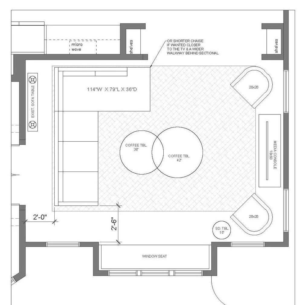
The sofa is the main seating in most living rooms. Place it against a wall to save space or float it in the center for a cozy conversation area. Leave at least 12 inches between the sofa and walls. This gap helps the room feel open and allows easy cleaning. Align the sofa to face the focal point, like a TV or fireplace. Avoid blocking walkways or doorways. Measure the room to pick a sofa size that fits well without crowding.
Coffee Table Sizing And Positioning
Choose a coffee table size that matches the sofa length. Ideally, the table should be two-thirds the length of the sofa. Keep 14 to 18 inches of space between the sofa and the table for legroom. The height of the coffee table should be equal to or slightly lower than the sofa seat. Center the table in front of the sofa for balance. If space is tight, opt for a round or oval shape to improve flow and reduce sharp edges.
Additional Seating Solutions
Extra seating adds flexibility and comfort. Use armchairs or ottomans to complement the sofa. Arrange chairs at a 45-degree angle to create a welcoming conversation zone. Stackable stools or poufs work well in small rooms. Place them near the coffee table or corners for easy access. Keep pathways clear by leaving at least 24 inches between seats. Choose pieces that match the room’s style and scale for harmony.
Incorporating Storage Solutions
Incorporating storage solutions in your living room plan helps keep the space tidy and organized. Smart storage fits seamlessly into your design without crowding the room. It maximizes available space while maintaining style and comfort.
Choose storage options that suit your lifestyle and room size. Well-planned storage makes daily living easier and enhances the room’s overall look.
Built-in Shelving Options
Built-in shelves use wall space efficiently. They provide ample room for books, decor, and electronics. Custom sizes fit perfectly around windows or doors, optimizing every inch.
Consider shelves with closed cabinets below. They hide clutter while keeping essentials close. Open shelves display favorite items and add character.
Storage Ottomans And Benches
Ottomans and benches with storage offer dual functionality. They serve as seating and hideaway for blankets, toys, or magazines. Perfect for smaller rooms needing extra storage without extra furniture.
Choose pieces with easy-to-open lids or drawers. They keep your living area neat and accessible. Materials like fabric or leather blend with your décor.
Hidden Storage Ideas
Hidden storage keeps the room looking clean and spacious. Use furniture with secret compartments or under-seat storage. These clever spots store items out of sight but within reach.
Think about wall panels or coffee tables with hidden drawers. Such features combine function and design without adding clutter. Ideal for minimalistic living rooms.

Balancing Aesthetics And Function
Balancing aesthetics and function in your living room furniture plan is key to creating a space that feels both beautiful and livable. You want your room to look inviting and stylish, but also to serve your daily needs without clutter or discomfort. Striking this balance often means thinking beyond just how things look and focusing on how they work together within your space.
Choosing Color And Texture
Color sets the mood of your living room instantly. Choose shades that complement your existing decor while adding warmth or calmness as needed. Don’t shy away from mixing textures—soft cushions, smooth leather, and rough wood can create a dynamic feel without overwhelming the space.
Ask yourself which colors make you feel relaxed and energized. Using a neutral palette with pops of color in pillows or rugs can keep things fresh yet functional. Texture also impacts comfort; a plush rug or cozy throw invites you to sit and stay awhile.
Lighting For Space Enhancement
Good lighting transforms both the look and usability of your living room. Layer your lighting with a mix of overhead lights, floor lamps, and task lighting to suit different activities. Natural light should never be underestimated—it opens up the room and highlights your furniture’s true colors.
Consider dimmers to adjust brightness based on mood or time of day. Reflective surfaces like mirrors or glass tables can bounce light around, making smaller spaces feel larger. What lighting setup encourages you to relax or entertain most in your space?
Decorative Yet Practical Accessories
Accessories are where you can express personality without sacrificing function. Choose items that add charm but also serve a purpose, such as stylish storage baskets, elegant trays, or decorative hooks. These help keep clutter at bay while enhancing the room’s style.
Think about what you use daily and how accessories can support those habits—do you need a place for magazines, remote controls, or your favorite books? Practical accessories keep your living room tidy and welcoming, turning everyday items into design elements.
Frequently Asked Questions
What Are Ideal Dimensions For A Living Room Sofa?
The ideal sofa length ranges from 72 to 96 inches. Depth typically measures 35 to 40 inches. These dimensions fit most living rooms comfortably, allowing enough seating and space for movement.
How Much Space Is Needed Between Furniture Pieces?
Maintain at least 18 inches between furniture for easy movement. For high traffic areas, allow 24 to 30 inches. This spacing ensures comfort and avoids overcrowding in your living room.
What Size Coffee Table Suits A Living Room?
Choose a coffee table about two-thirds the length of your sofa. Standard height is 16 to 18 inches. This size complements seating and keeps items within easy reach.
How To Plan Furniture Layout For Small Living Rooms?
Use compact furniture and multi-functional pieces. Arrange seating against walls to maximize floor space. Keep pathways clear to maintain flow and avoid clutter.
Conclusion
A well-planned living room makes daily life easier and more fun. Knowing the right furniture size helps you save space and stay organized. Simple measurements guide you to choose pieces that fit well and look good. This plan helps create a cozy, comfortable place for family and friends.
Take your time to measure and arrange. Your living room can be both stylish and practical. Small changes make a big difference in how your space feels. Start with clear dimensions, then build your perfect room step by step.